600 Seats
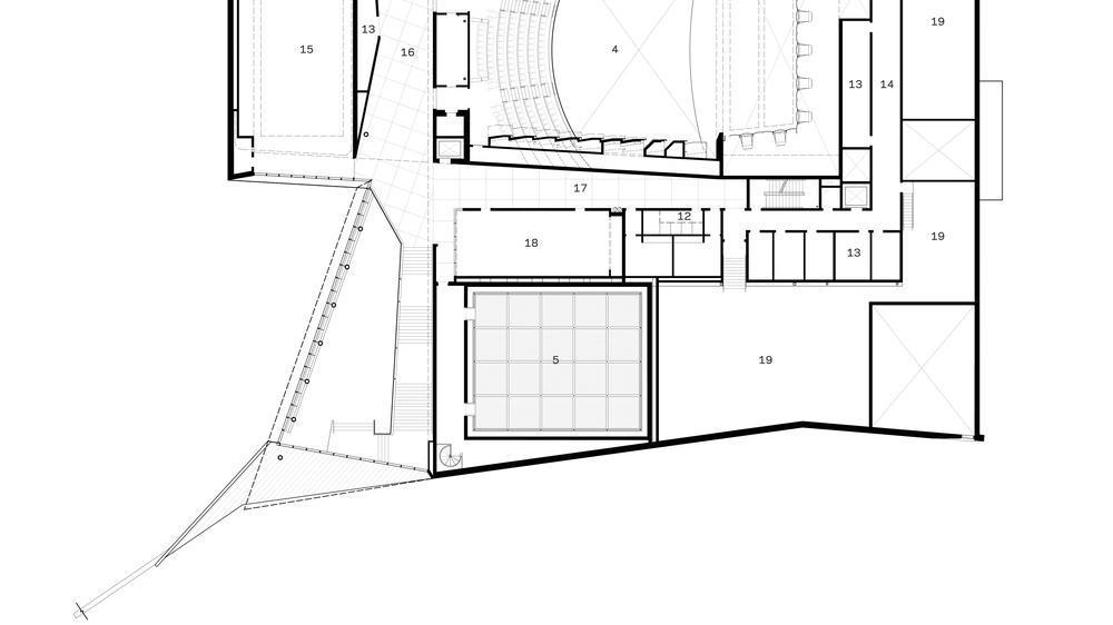
The newest addition to this collection, the $26.5 million Marshall Family Performing Arts Center, is not likely to be overshadowed by birds, however resplendent. Designed by New York??based architects Weiss/Manfredi Architecture/Landscape/Urbanism, the 65,000-square-foot building at once hugs the landscape and cantilevers out dramatically from it, toward the center of the Greenhill campus.
Our first concert of the year will be in Rose Hall of the Marshall Family Performing Arts Center� at Greenhill School in� Addison, TX. Using the default listed� address� for Greenhill School will take you to a different part of campus than the� Marshall Family Performing Arts Center.
The new building is located on the northeast corner of the campus and is surrounded by 100 additional parking spaces to provide easy accessibility to the Greenhill community.
-
Address -
-
4141 Spring Valley Rd
-
Addison,TX,United States
-
75001
-
-
Seating - 600
-
Photos
